Mẫu thiết kế các sản phẩm tại dự án Century City chi tiết
Kim Oanh Group vừa công bố tất tần tật Mẫu thiết kế các sản phẩm tại dự án Century City một cách chi tiết nhất. Hi vọng những thông tin mới về thiết kế sẽ giúp quý khách chọn căn nhà phụ hợp với phong thuỷ của từng gia chủ.
Mục lục [Ẩn]

Mẫu thiết kế các sản phẩm tại dự án Century City chi tiết
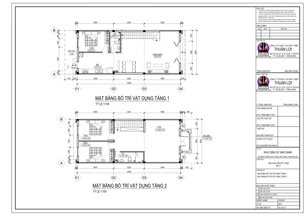
Mẫu thiết kế sản phẩm nhà phố 2 tầng



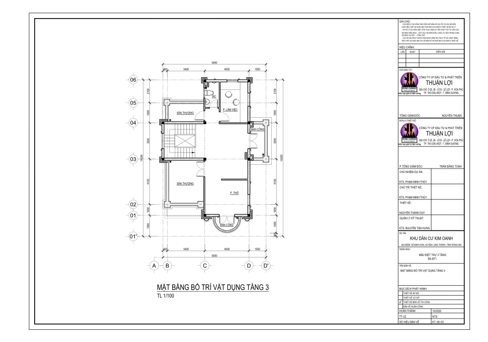
Mẫu thiết kế sản phẩm biệt thự điển hình



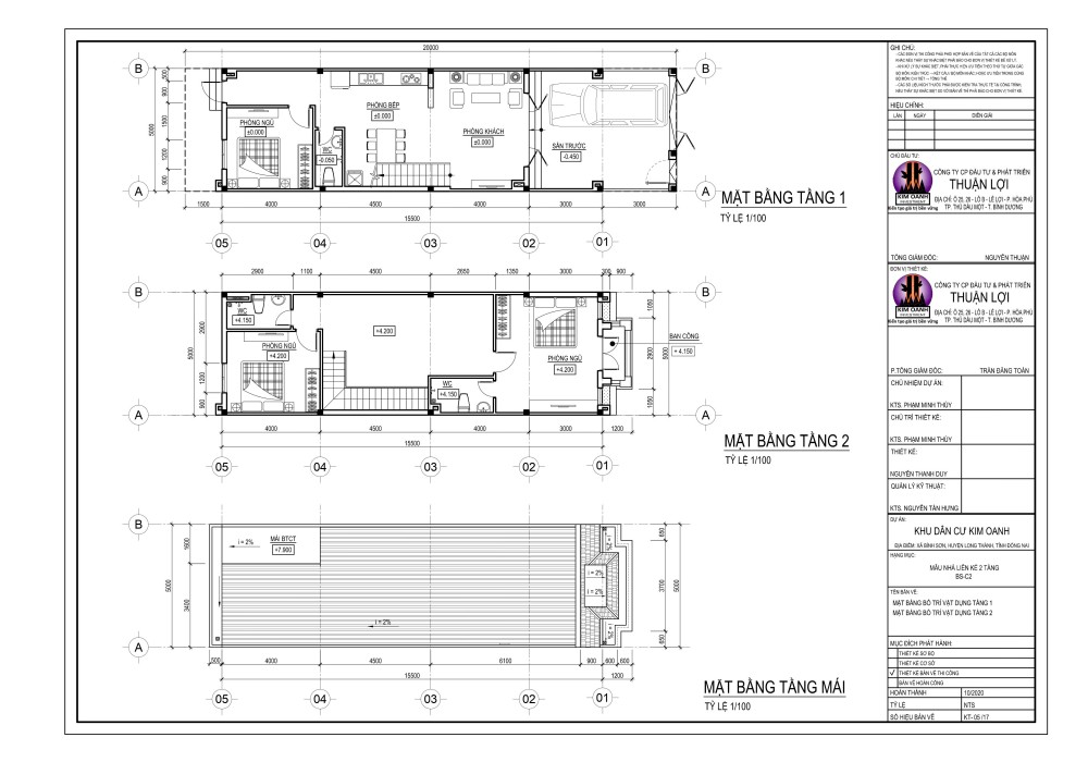
Mẫu thiết kế sản phẩm liên kế Vườn


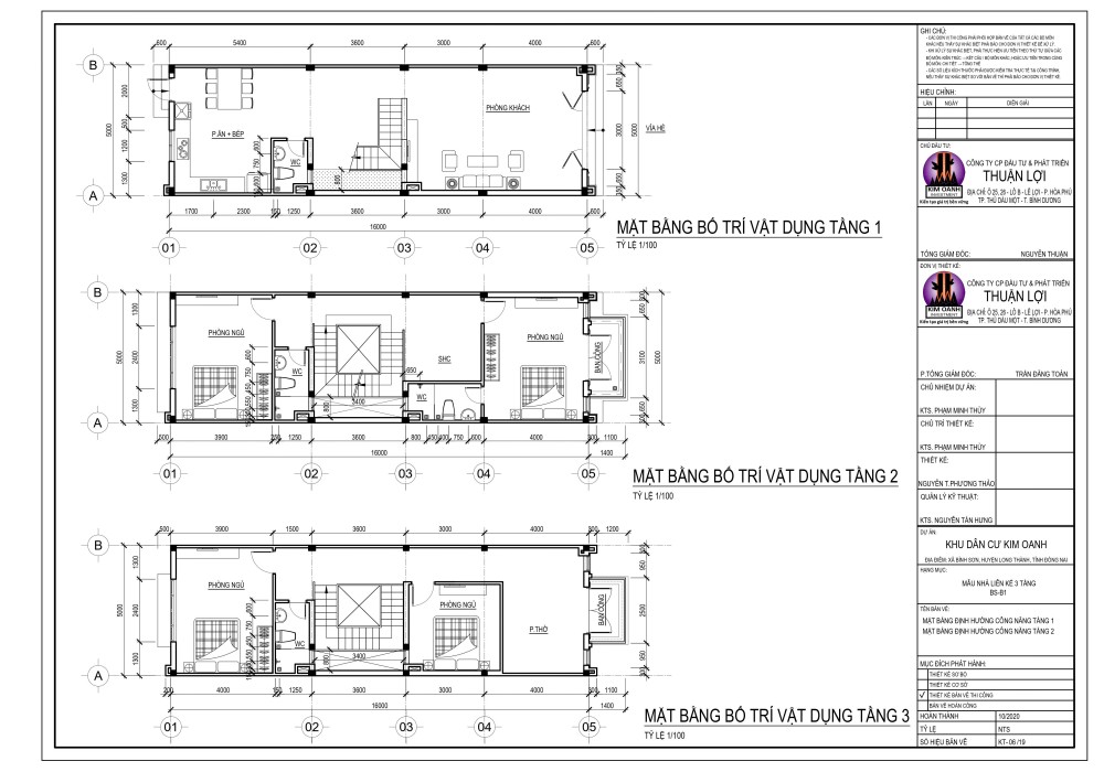
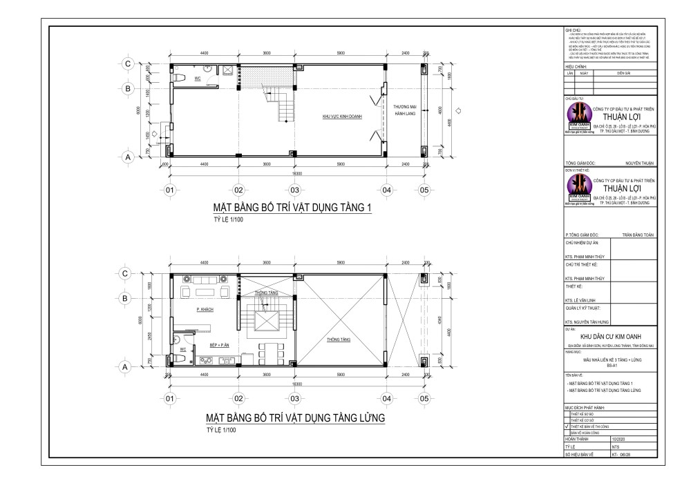
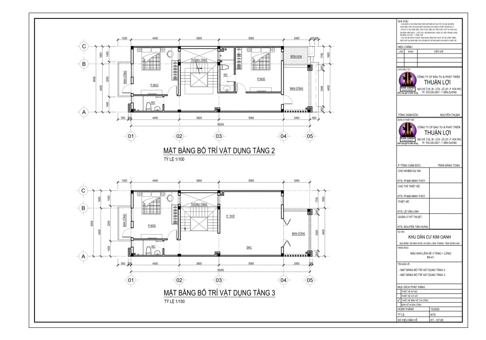
Mẫu thiết kế sản phẩm liên kế nhà phố 3 tầng điển hình


Mẫu thiết kế sản phẩm Shophouse điển hình



Bên trên là Mẫu thiết kế các sản phẩm tại dự án Century City, được cập nhật chính thức từ đội ngũ Kim Oanh Group. Quý khách có thể tìm hiểu thông tin pháp lý, giá bán, chính sách và tiến độ dự án năm 2021 tại https://century-city.vn/
